A proposal to build 22 new homes on Whitwell Street, Reepham, has been submitted as part of Broadland District Council’s Preferred Options consultation.
The site (X48-01), which will have vehicle access from Mill Road, is not listed as one of Broadland’s preferred options for housing development in Reepham. It was originally submitted as an alternative to the Shortlisted Sites consultation held in autumn 2011.
However, according to planning agent Hugh Ivins, the proposed scheme is based on recent consultations with Norfolk County Council Education Service and also takes into account the requirements of site concept statements that have been prepared for other sites in Reepham as outlined in the Preferred Options Document 2013.
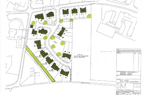
The outline scheme prepared by SMG Architects of Sheringham proposes the allocation of 0.5 hectares (1.25 acres) of the site adjacent to the primary school, which is required by the County Council to safeguard an area of land for future expansion of the school due to windfall sites and new residential allocations.
The 22 dwellings will be a mix of house types with detached and semi-detached houses and some terrace dwellings and with bungalows on the southeast boundary. There will be a requirement that 33% of the dwellings will be for social housing/affordable.
Under the Code for Sustainable Homes, the dwellings will be required to be built to Code Level 3 and in some cases to Code Level 4 for water efficiency. A sustainable drainage system (SUDS) will be incorporated into the scheme to ensure that any water run-off is contained within the site, said Mr Ivins.
The principal vehicle access will be from Mill Road and will incorporate road widening and a footpath along the whole frontage. There will also be a footpath link to Bar Lane for pedestrian and cycle access to the town centre.
A landscape belt is proposed along the southeast boundary adjacent to the existing housing and there is additional landscaping within the scheme. A centrally sited recreational play area is also proposed for the dwellings.
Mr Ivins explained that the layout of 22 dwellings within this site of 1.28 hectares (1.88 acres) represents a density of about 17 dwellings per hectare, “which is considered appropriate for this site that is surrounded by existing development, and includes significant vehicle and pedestrian improvements to Mill Road and a land allocation to enable planned expansion of the Primary School”.
The proposed scheme has been uploaded to Broadland’s Consultation Portal as a response to the question on Reepham’s Settlement Limit.
The public consultation closes at 5 pm on Monday 2 September 2013. To view comments, click HERE
See our earlier news stories:
Outline housing scheme proposed for Whitwell Road site
Broadland’s ‘Preferred Options’ summer consultation opens
Broadland announces preferred sites for development
Click on the submitted proposals below:

